Villa am Zürichsee

Villa am Zürichsee
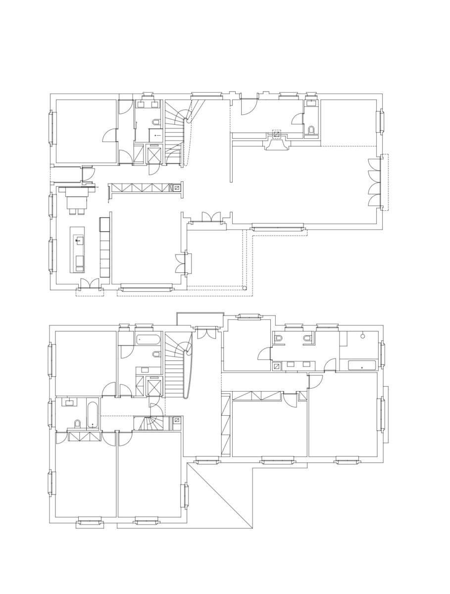
Die ehemalige Unternehmervilla aus den 60er Jahren wurde mit dezent historisierenden Stilelementen und einem opulenten Innenausbau errichtet. Die neuen Besitzer wollen die gut erhaltene Liegenschaft auf ihre Bedürfnisse zuschneiden und gleichzeitig die Qualitäten des Hauses erhalten.
Für die Eingriffe an der Fassade wird die urspüngliche architektonische Prägung des Gebäudes respektiert und weitergeführt. Kleine Anpassungen wie das Weglassen von Fenstersprossen oder das Angleichen von unterschiedlichen Fensterproportionen führen zu einer moderneren Haltung.
Im Innern wird vor allem reduziert und geöffnet. Die ehemals sehr in sich geschlossenen und zum Teil etwas düsteren Räume werden mit einem einheitlichen Bodenbelag aus hellen, grossformatigen Kalksandsteinplatten zusammengeführt. Die vergrösserten Öffnungen zwischen den Räumen erlauben neue Quer- und Durchblicke. Mit ihnen erweitert sich das Raumbewusstsein der Bewohner. Ein Raumkontinuum entsteht.
-
Projekttitel
Villa am Zürichsee
-
Bauaufgabe
Sanierung und Innenausbau
-
Bauherrschaft
Privat
-
Ort
Zollikon
-
Zeitraum
Mai – August 2006
-
Status
Ausgeführt
-
Zusammenarbeit
Dominik Herzog Felix Ackerknecht
-
Bilder
Axel Linge
- Projektblatt

Weinbergstrasse

Wohnüberbauung Küttigerstrasse

Restaurant zum Schlachthof

Birchstrasse

Besucherzentrum Hagenholz

Stadthaus Felsenrain

Weinbergstrasse

Hegibachstrasse

Bruchstrasse 6/8

Ersatzneubau Nordstrasse

Ersatzneubau Nordstrasse

Quartier Hard

Kindergarten Nordstrasse

Stadthaus Baumackerstrasse

Stadthaus Baumackerstrasse

Brandhaus Übungsdorf

"Statt-Haus" Erlenstrasse

Mehrfamilienhaus "Im Lingg"

Ersatzneubau Winterhalde

Zypressenhof Limmatfeld

Mieterausbau ECHO RE

AXA Generalagentur City

Einfamilienhaus Kristall

Liegenschaft «Eber»

ZüriWC Bucheggplatz

ZüriWC Meierhofplatz

Bahnhofstrasse 106/108

Pflegezentrum Mattenhof

Food Emporium Bridgemarket

Herdernstrasse

Primarschulhaus Haldenacher

Eichbergpark

Seestrasse

Schulhaus Rothenthurm

Krematorium Schoren

Wohnüberbauung Stricker Areal

Wohnüberbauung Brünnen

Areal Tramdepot Burgernziel

Lerchenhalde

Café Letten

Siedlung Eyhof

Sukkulenten Sammlung Zürich

Eigentumswohnung Rütistrasse

Raiffeisenbank Kreuzplatz

Badeanlage Oberer Letten

Schulhaus Bitzius

Personalrestaurant NZZ

Einfamilienhäuser Obstgarten

Terrassenhäuser Zum Obstberg

Maison d’ami „la draille“

Lindt Amici Bar Globus

Schulhaus Pfaffechappe
