Wohnen auf dem Schlachthofareal
Wohnen auf dem Schlachthofareal
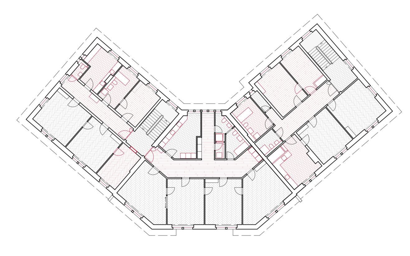
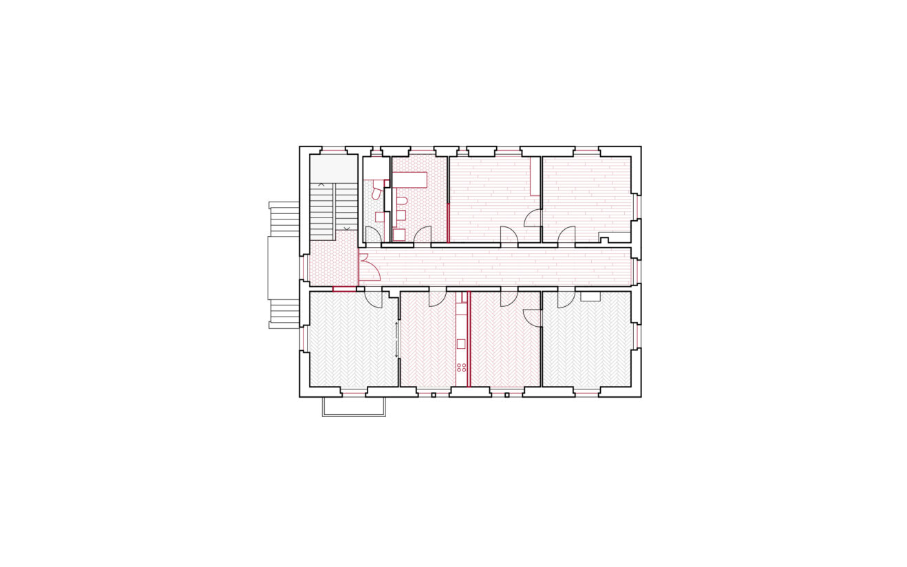
Atelier M Architekten leiten auf dem Schlachthofareal als Generalplaner die Gesamtinstandsetzung aller fünfzehn denkmalgeschützten Gebäude von überregionaler Bedeutung. Als Teil des Eingangsensembles bildet das Wohn- und Wirtschaftsgebäude an der Kreuzung Baslerstrasse Herdernstrasse seine Adresse. Seit in Betriebnahme des Areals befinden sich ebenerdig zur Strasse ein Restaurant und in den Obergschossen grosse Wohnungen, ehemals für leitende Angestellte.
Mit aufwendiger Rustizierung, Walmdächern, Dachgauben und Kaminen setzt sich dieses Gebäude von den übrigen Gebäuden ab. Die gezielten Eingriffe stärken seine bestehenden baulichen Qualitäten. Die Wohnungen werden an heutige Wohnstandards angepasst. Jede Wohnung verfügt neu über eine sehr grosszügige Küche und jeweils zwei Nassräume. Die bauzeitlichen Innenausbauten und hochwertigen Oberflächen werden fachgerecht instandgesetzt. Neue Oberflächen werden mit bauzeittypischen Materialien in einer sanft modernisierten Art und Weise eingefügt. Der durch Umbauten entstellte Gastraum des Restaurants wird auf seine bauzeitliche Form zurückgeführt. Der ehemalige Jugendstillausbau wird aufgegriffen und neu interpretiert. Die präzisen aber zurückhaltenden Eingriffe in die thermische Hülle verbessern die Energiebilanz und den Komfort massgeblich. Der Ersatz der gebäudetechnischen Infrastruktur wird schonend in den Bestand integriert.
-
Projekttitel
Wohnen auf dem Schlachthofareal
-
Bauaufgabe
Instandstellung, Umbau, Erneuerung
-
Bauherrschaft
Stadt Zürich
-
Ort
Zürich
-
Zeitraum
2021-2024
-
Status
Ausgeführt
-
Bilder
Daniel Sutter, Zürich
- Projektblatt
Ersatzneubau Aryanastrasse
Weinbergstrasse
Überbauung Küttigerstrasse
Restaurant zum Schlachthof
Birchstrasse
Besucherzentrum Hagenholz
Stadthaus Felsenrain
Hegibachstrasse
Bruchstrasse 6/8
Ersatzneubau Nordstrasse
Quartier Hard
Kindergarten Nordstrasse
Stadthaus Baumackerstrasse
Brandhaus Übungsdorf
"Statt-Haus" Erlenstrasse
Mehrfamilienhaus "Im Lingg"
Ersatzneubau Winterhalde
Zypressenhof Limmatfeld
Mieterausbau ECHO RE
AXA Generalagentur City
Einfamilienhaus Kristall
Liegenschaft «Eber»
ZüriWC Bucheggplatz
ZüriWC Meierhofplatz
Bahnhofstrasse 106/108
Pflegezentrum Mattenhof
Food Emporium Bridgemarket
Herdernstrasse
Primarschulhaus Haldenacher
Eichbergpark
Seestrasse
Schulhaus Rothenthurm
Krematorium Schoren
Wohnüberbauung Stricker Areal
Wohnüberbauung Brünnen
Areal Tramdepot Burgernziel
Lerchenhalde
Café Letten
Siedlung Eyhof
Sukkulenten Sammlung Zürich
Eigentumswohnung Rütistrasse
Raiffeisenbank Kreuzplatz
Badeanlage Oberer Letten
Schulhaus Bitzius
Personalrestaurant NZZ
Einfamilienhäuser Obstgarten
Terrassenhäuser Zum Obstberg
Villa am Zürichsee
Maison d’ami „la draille“
Lindt Amici Bar Globus