Einfamilienhaus Kristall

Einfamilienhaus Kristall
Der Neubau sitzt am Beginn des kleinen Tales Buechstuden. Die Bauherrschaft wünschte einen traditionellen Holzbau mit einem zeitgenössischen Ausdruck. Das Gebäude sollte sich im gewachsenen Kontext einfügen, aber dennoch ein modernes Haus sein.
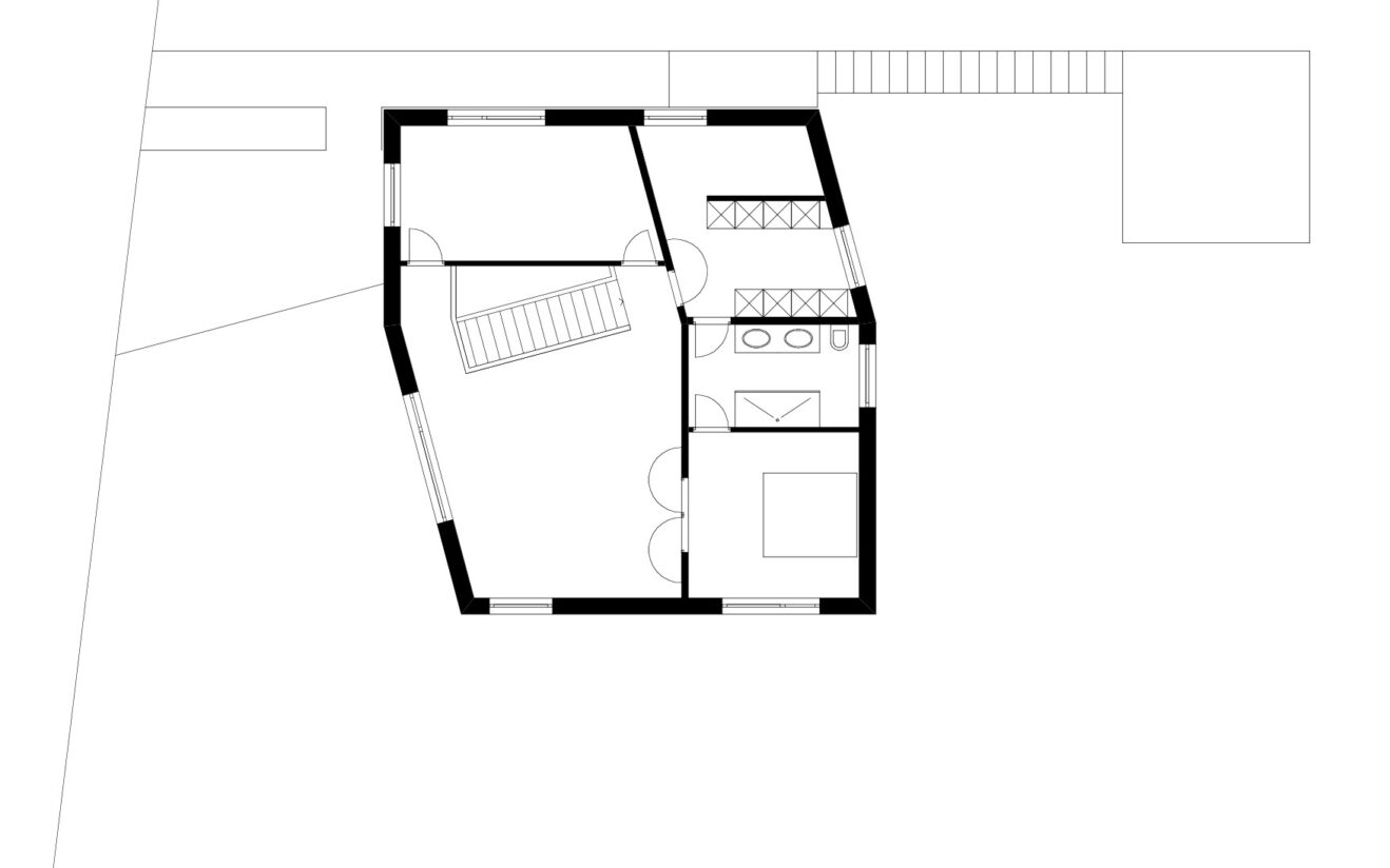
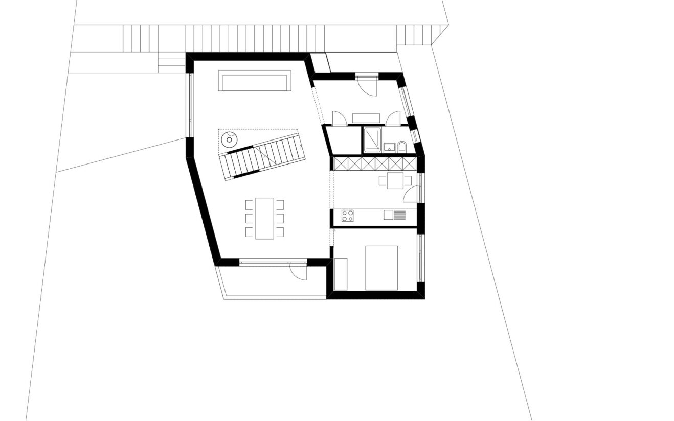
Der Gebäudekörper manifestiert sich in der Magerwiese wie ein kristallines Volumen. Dabei reagieren die abgeknickten Gebäudeseiten auf die spektakulären Ausblicke an das nahegelegene Alpsteinmassiv. Ein geschossübergreifender Wohnraum bildet das grosszügige Zentrum des Hauses. Ein fein detailierter Treppenkörper wirkt darin vertikal als verbindendes Element. Bergseitig flankiert eine durchgängige Schicht sekundärer Räume diesen zentralen Raum. Der Sockel ist massiv betoniert. Darauf aufbauend sitzt in Elementbauweise ein präziser Holzbau aus vorgefertigten Wand- und Dachelementen. Der ganze Gebäudekörper ist mit einer sägerohnen Vertikalschalung aus europäischer Fichte verkleidet.
-
Projekttitel
Einfamilienhaus Kristall
-
Bauaufgabe
Neubau
-
Bauherrschaft
Privat
-
Ort
Gais, Appenzell Ausserrhoden
-
Zeitraum
November 2006 - Februar 2008
-
Status
Ausgeführt
-
Zusammenarbeit
Felix Ackerknecht
-
Bilder
Walter Mair
- Projektblatt

Weinbergstrasse

Wohnüberbauung Küttigerstrasse

Restaurant zum Schlachthof

Birchstrasse

Besucherzentrum Hagenholz

Stadthaus Felsenrain

Weinbergstrasse

Hegibachstrasse

Bruchstrasse 6/8

Ersatzneubau Nordstrasse

Ersatzneubau Nordstrasse

Quartier Hard

Kindergarten Nordstrasse

Stadthaus Baumackerstrasse

Stadthaus Baumackerstrasse

Brandhaus Übungsdorf

"Statt-Haus" Erlenstrasse

Mehrfamilienhaus "Im Lingg"

Ersatzneubau Winterhalde

Zypressenhof Limmatfeld

Mieterausbau ECHO RE

AXA Generalagentur City

Liegenschaft «Eber»

ZüriWC Bucheggplatz

ZüriWC Meierhofplatz

Bahnhofstrasse 106/108

Pflegezentrum Mattenhof

Food Emporium Bridgemarket

Herdernstrasse

Primarschulhaus Haldenacher

Eichbergpark

Seestrasse

Schulhaus Rothenthurm

Krematorium Schoren

Wohnüberbauung Stricker Areal

Wohnüberbauung Brünnen

Areal Tramdepot Burgernziel

Lerchenhalde

Café Letten

Siedlung Eyhof

Sukkulenten Sammlung Zürich

Eigentumswohnung Rütistrasse

Raiffeisenbank Kreuzplatz

Badeanlage Oberer Letten

Schulhaus Bitzius

Personalrestaurant NZZ

Einfamilienhäuser Obstgarten

Terrassenhäuser Zum Obstberg

Villa am Zürichsee

Maison d’ami „la draille“

Lindt Amici Bar Globus

Schulhaus Pfaffechappe
