Besucherzentrum Hagenholz

Struktur im Recycling
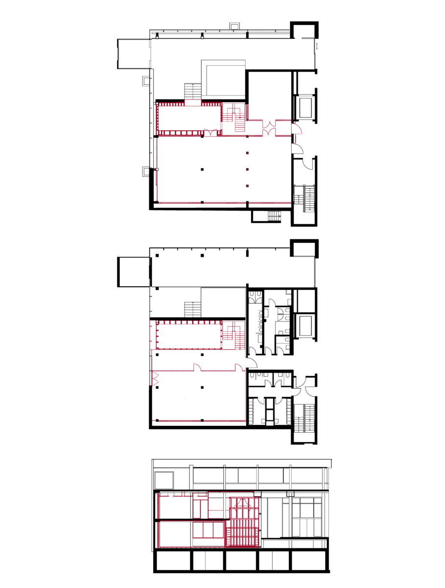
Entsorgung + Recycling Zürich (ERZ) will einerseits die Bevölkerung über die Möglichkeiten zur Vermeidung und Verminderung von Abfall informieren, andererseits sollen die Räumlichkeiten für interne Schulungen oder für Anlässe genutzt werden können. Das Raumprogramm umfasst ein Foyer, einen Veranstaltungsraum und einen Schulungsraum im Obergeschoss.
Das zweigeschossige Foyer wird von einem hohen Rastermöbel ausgekleidet und gibt ihm Struktur, horizontal wie auch vertikal. Das Rastermass ist aus den unterschiedlichen Anforderungen, den Öffnungen und den zu integrierenden Funktionen entwickelt worden. Es ist ein Multi-Tasking Möbel, das neben Ein- und Ausgängen eine Glas-Installation, eine Garderobe und ein Helmregal beinhaltet und nach oben als Brüstung einer Galerie abschliesst. Die Konstruktion ist aus preiswerten, roh anmutenden Massenwerkstoffen erstellt, um die industrielle Stimmung der Kehrichtverbrennungskammer wiederzugeben. Der Boden ist mit feuerfesten Schamottsteinen ausgelegt. Die oberen zwei Raster-Reihen sind offen gehalten, um eine räumliche Beziehung zwischen Empfang, Foyer, Treppenaufgang und Galerie zu ermöglichen.
Das Recycling, das Kernthema für zukünftige Ausstellungen und den Rundgang auf dem Areal, wird mit einer Glas-Installation im Foyer plakativ in Szene gesetzt während die Teppiche und die Vorhänge aus wiederverwerteten Materialien in den Veranstaltungs- und Schulungsräumen diskret im Hintergrund bleiben.
-
Projekttitel
Besucherzentrum Hagenholz
-
Bauaufgabe
Neubau und Ausbau
-
Bauherrschaft
ERZ, Stadt Zürich
-
Ort
Zürich
-
Zeitraum
2019 - 2021
-
Status
Ausgeführt
-
Bilder
Daniel Sutter, Zürich
Peter Tillessen, Zürich - Projektblatt

Weinbergstrasse

Wohnüberbauung Küttigerstrasse

Restaurant zum Schlachthof

Birchstrasse

Stadthaus Felsenrain

Weinbergstrasse

Hegibachstrasse

Bruchstrasse 6/8

Ersatzneubau Nordstrasse

Ersatzneubau Nordstrasse

Quartier Hard

Kindergarten Nordstrasse

Stadthaus Baumackerstrasse

Stadthaus Baumackerstrasse

Brandhaus Übungsdorf

"Statt-Haus" Erlenstrasse

Mehrfamilienhaus "Im Lingg"

Ersatzneubau Winterhalde

Zypressenhof Limmatfeld

Mieterausbau ECHO RE

AXA Generalagentur City

Einfamilienhaus Kristall

Liegenschaft «Eber»

ZüriWC Bucheggplatz

ZüriWC Meierhofplatz

Bahnhofstrasse 106/108

Pflegezentrum Mattenhof

Food Emporium Bridgemarket

Herdernstrasse

Primarschulhaus Haldenacher

Eichbergpark

Seestrasse

Schulhaus Rothenthurm

Krematorium Schoren

Wohnüberbauung Stricker Areal

Wohnüberbauung Brünnen

Areal Tramdepot Burgernziel

Lerchenhalde

Café Letten

Siedlung Eyhof

Sukkulenten Sammlung Zürich

Eigentumswohnung Rütistrasse

Raiffeisenbank Kreuzplatz

Badeanlage Oberer Letten

Schulhaus Bitzius

Personalrestaurant NZZ

Einfamilienhäuser Obstgarten

Terrassenhäuser Zum Obstberg

Villa am Zürichsee

Maison d’ami „la draille“

Lindt Amici Bar Globus

Schulhaus Pfaffechappe
