Areal Tramdepot Burgernziel

Areal Tramdepot Burgernziel
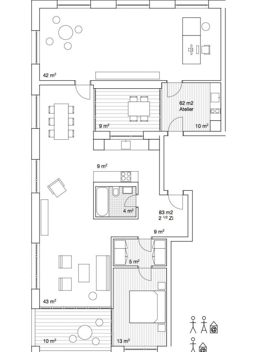
Die geplante Verlagerung des Tramdepots in Bern Burgernziel spielt ein Grundstück frei, das neue Möglichkeiten für das ganze Quartier eröffnet.
Im städtebaulichen Makrokontext besetzt das neue Areal Burgernziel mit seiner Zentrumsfunktion ein urbanes Vakuum zwischen Murifeld und Altstadt. Die neue dichte Stadtfront an der Thunstrasse setzt dazu das adäquate Zeichen. Fünfgeschossige Baukörper akzentuieren die Ränder des Areals und bilden eine optische Klammer für das neue Quartier. Das Areal tritt an seinen Rändern in einen Dialog mit den angrenzenden Arealen und fungiert damit als Vermittler zwischen den dichten Bauzeilen der Thunstrasse mit Läden im Erdgeschoss und dem durchgrünten Reihenhausgürtel an der Staufferstrasse. Die hohe Kompaktheit und Flächeneffizienz, eine optimierte Statik und schlanke Haustechnik sind die Grundlage für eine grosse Kosteneffizienz.
-
Projekttitel
Areal Tramdepot Burgernziel
-
Bauaufgabe
Neubau
-
Bauherrschaft
Stadt Bern
-
Ort
Bern Burgernziel
-
Zeitraum
Oktober - Dezember 2012
-
Status
Wettbewerb
- Projektblatt

Weinbergstrasse

Wohnüberbauung Küttigerstrasse

Restaurant zum Schlachthof

Birchstrasse

Besucherzentrum Hagenholz

Stadthaus Felsenrain

Weinbergstrasse

Hegibachstrasse

Bruchstrasse 6/8

Ersatzneubau Nordstrasse

Ersatzneubau Nordstrasse

Quartier Hard

Kindergarten Nordstrasse

Stadthaus Baumackerstrasse

Stadthaus Baumackerstrasse

Brandhaus Übungsdorf

"Statt-Haus" Erlenstrasse

Mehrfamilienhaus "Im Lingg"

Ersatzneubau Winterhalde

Zypressenhof Limmatfeld

Mieterausbau ECHO RE

AXA Generalagentur City

Einfamilienhaus Kristall

Liegenschaft «Eber»

ZüriWC Bucheggplatz

ZüriWC Meierhofplatz

Bahnhofstrasse 106/108

Pflegezentrum Mattenhof

Food Emporium Bridgemarket

Herdernstrasse

Primarschulhaus Haldenacher

Eichbergpark

Seestrasse

Schulhaus Rothenthurm

Krematorium Schoren

Wohnüberbauung Stricker Areal

Wohnüberbauung Brünnen

Lerchenhalde

Café Letten

Siedlung Eyhof

Sukkulenten Sammlung Zürich

Eigentumswohnung Rütistrasse

Raiffeisenbank Kreuzplatz

Badeanlage Oberer Letten

Schulhaus Bitzius

Personalrestaurant NZZ

Einfamilienhäuser Obstgarten

Terrassenhäuser Zum Obstberg

Villa am Zürichsee

Maison d’ami „la draille“

Lindt Amici Bar Globus

Schulhaus Pfaffechappe
