Raiffeisenbank Kreuzplatz

Raiffeisenbank Kreuzplatz
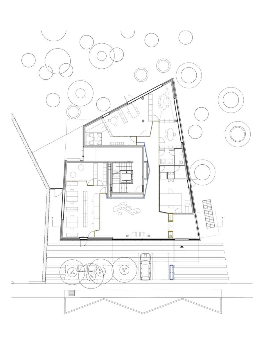
Die erstklassige Lage der Liegenschaft wird genutzt, indem sich das neue Banklokal optimal mit einer grosszügigen Halle in den Strassenraum präsentiert. Transparenz und Offenheit nach aussen, die freundlich einlädt.
Die Kundenhalle stellt das zentrale Anliegen des Projektvorschlags dar. Sie wird an der breitesten und hellsten Stelle des Grundrisses platziert. Ihr Rücken bildet der mit Gussglas verkleidete Gebäudekern. Er ist das Zentrum der Halle und gleichzeitig das strukturierende und leitende Motiv der Räumlichkeiten. Mit der Materialisierung in handgefertigtem Gussglas wird er als hochwertiges und wertvolles Gut dargestellt. Ein Symbol für innere Werte, Offenheit und Transparenz. Die zusammengefügten Sechsecke aus Gussglas erinnern an das ehemalige Logo der Raiffeisenbank, das Fügen der Formen zu einem Körper an die genossenschaftliche Struktur der Bank. Dieses in unserem Vorschlag wichtigste Material repräsentiert in höchstem Mass den von Raiffeisen erhobenen Anspruch an die Dreiheit - Kompetenz, Dynamik und Vertrauen.
-
Projekttitel
Raiffeisenbank Kreuzplatz
-
Bauaufgabe
Innenausbau
-
Bauherrschaft
Raiffeisenbank Schweiz
-
Ort
Zeltweg, Zürich
-
Zeitraum
Oktober – November 2009
-
Status
Studienauftrag eingeladen
- Projektblatt

Weinbergstrasse

Wohnüberbauung Küttigerstrasse

Restaurant zum Schlachthof

Birchstrasse

Besucherzentrum Hagenholz

Stadthaus Felsenrain

Weinbergstrasse

Hegibachstrasse

Bruchstrasse 6/8

Ersatzneubau Nordstrasse

Ersatzneubau Nordstrasse

Quartier Hard

Kindergarten Nordstrasse

Stadthaus Baumackerstrasse

Stadthaus Baumackerstrasse

Brandhaus Übungsdorf

"Statt-Haus" Erlenstrasse

Mehrfamilienhaus "Im Lingg"

Ersatzneubau Winterhalde

Zypressenhof Limmatfeld

Mieterausbau ECHO RE

AXA Generalagentur City

Einfamilienhaus Kristall

Liegenschaft «Eber»

ZüriWC Bucheggplatz

ZüriWC Meierhofplatz

Bahnhofstrasse 106/108

Pflegezentrum Mattenhof

Food Emporium Bridgemarket

Herdernstrasse

Primarschulhaus Haldenacher

Eichbergpark

Seestrasse

Schulhaus Rothenthurm

Krematorium Schoren

Wohnüberbauung Stricker Areal

Wohnüberbauung Brünnen

Areal Tramdepot Burgernziel

Lerchenhalde

Café Letten

Siedlung Eyhof

Sukkulenten Sammlung Zürich

Eigentumswohnung Rütistrasse

Badeanlage Oberer Letten

Schulhaus Bitzius

Personalrestaurant NZZ

Einfamilienhäuser Obstgarten

Terrassenhäuser Zum Obstberg

Villa am Zürichsee

Maison d’ami „la draille“

Lindt Amici Bar Globus

Schulhaus Pfaffechappe
