Zypressenhof Limmatfeld

Zypressenhof Limmatfeld
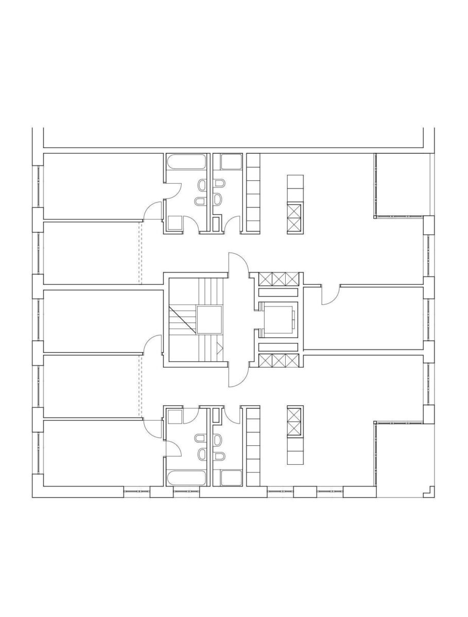
Im Limmatfeld entsteht ein Stadtteil mit grossstädtischen Dimensionen. Das Haus soll zu diesem Ambiente etwas beitragen können. Die Adresse des Hauses bildet eine repräsentative Fassade, die mit dem zweigeschossigen Eingang an den Massstab der Arkaden anknüpft. Zum Innenhof werden die Fassaden einfacher und in bewährter Manier intimer.
Der Entwurf orientiert sich an lokalen Gebäuden, die in der Zürcher Metropolitanregion anzutreffen sind. Elemente dieser Referenzen werden für die anstehende Bauaufgabe nutzbar gemacht. Der gedrungenen Fassadenproportion des Baukörpers wird mit der Betonung der Vertikalen begegnet. Klare Linien gliedern den Baukörper in drei schlanke Bauteile und geben ihm eine aufstrebende Dynamik. Die Wohnungsgrundrisse des Mehrfamilienhauses sind vielseitig nutzbar. Das Haus ist rein mineralisch konstruiert. Alle vertikalen Elemente sind gemauert, die Fassade ist mit einer druckfesten Kalk-Sand-Zementdämmung eingekleidet. Verschiedene Putzoberflächen unterstützen die Gliederung in der Fassade.
-
Projekttitel
Zypressenhof Limmatfeld
-
Bauaufgabe
Neubau Mehrfamilienhaus
-
Bauherrschaft
Halter AG Entwicklungen
-
Ort
Dietikon
-
Zeitraum
2010 - 2013
-
Status
Ausgeführt
-
Zusammenarbeit
Stücheli Architekten AG
- Projektblatt

Weinbergstrasse

Wohnüberbauung Küttigerstrasse

Restaurant zum Schlachthof

Birchstrasse

Besucherzentrum Hagenholz

Stadthaus Felsenrain

Weinbergstrasse

Hegibachstrasse

Bruchstrasse 6/8

Ersatzneubau Nordstrasse

Ersatzneubau Nordstrasse

Quartier Hard

Kindergarten Nordstrasse

Stadthaus Baumackerstrasse

Stadthaus Baumackerstrasse

Brandhaus Übungsdorf

"Statt-Haus" Erlenstrasse

Mehrfamilienhaus "Im Lingg"

Ersatzneubau Winterhalde

Mieterausbau ECHO RE

AXA Generalagentur City

Einfamilienhaus Kristall

Liegenschaft «Eber»

ZüriWC Bucheggplatz

ZüriWC Meierhofplatz

Bahnhofstrasse 106/108

Pflegezentrum Mattenhof

Food Emporium Bridgemarket

Herdernstrasse

Primarschulhaus Haldenacher

Eichbergpark

Seestrasse

Schulhaus Rothenthurm

Krematorium Schoren

Wohnüberbauung Stricker Areal

Wohnüberbauung Brünnen

Areal Tramdepot Burgernziel

Lerchenhalde

Café Letten

Siedlung Eyhof

Sukkulenten Sammlung Zürich

Eigentumswohnung Rütistrasse

Raiffeisenbank Kreuzplatz

Badeanlage Oberer Letten

Schulhaus Bitzius

Personalrestaurant NZZ

Einfamilienhäuser Obstgarten

Terrassenhäuser Zum Obstberg

Villa am Zürichsee

Maison d’ami „la draille“

Lindt Amici Bar Globus

Schulhaus Pfaffechappe
