Einfamilienhäuser Obstgarten

Einfamilienhäuser im Obstgarten
Das Hanggrundstück liegt am nordwestlichen Siedlungsrand des Dorfes Wangen bei Brüttisellen. Es ist optimal nach Südwesten ausgerichtet und bietet einen sehr schönen Weitblick ins Glatttal und zu den Alpen. Alle fünf neuen Einfamilienhäuser sollen von dieser Sicht profitieren.
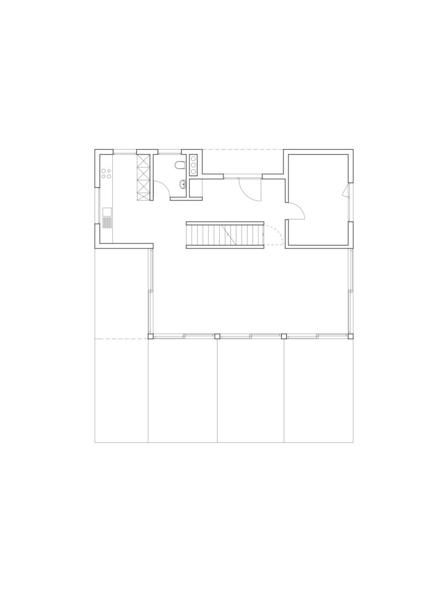
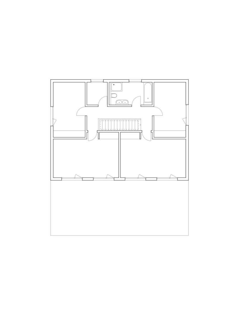
Versetzt zueinander platzieren wir die Volumen, talseits die etwas grösseren Volumen parallel zur Hangneigung, bergseits die kleineren Haustypen senkrecht dazu. Die Geometrie dieser freistehenden Anordnung erzeugt eine Durchlässigkeit mit zahlreichen Durchblicken, von der zusätzlich zu den neuen Hausbesitzern auch die ansässigen Nachbarn profitieren werden.
Die Häuser sind strukturell so aufgebaut, dass die Wünsche der Käufer bezüglich räumlicher Einteilung und Ausbau einbezogen werden können. So sind für die Lage der Küche, die Anzahl der Nasszellen und die Grösse der Schlafzimmer mehrere Optionen verfügbar. Die privaten Gärten sind über eine feine räumliche Abstufung von den öffentlichen Umgebungsräumen abgetrennt.
-
Projekttitel
Einfamilienhäuser Obstgarten
-
Bauaufgabe
Neubau von 5 Einfamilienhäusern
-
Bauherrschaft
Marty Häuser AG
-
Ort
Wangen bei Brüttisellen, Zürich
-
Zeitraum
Juni - Sept 2007
-
Status
Ausgeführt
-
Zusammenarbeit
Felix Ackerknecht
-
Bilder
Atelier M Architekten
- Projektblatt

Weinbergstrasse

Wohnüberbauung Küttigerstrasse

Restaurant zum Schlachthof

Birchstrasse

Besucherzentrum Hagenholz

Stadthaus Felsenrain

Weinbergstrasse

Hegibachstrasse

Bruchstrasse 6/8

Ersatzneubau Nordstrasse

Ersatzneubau Nordstrasse

Quartier Hard

Kindergarten Nordstrasse

Stadthaus Baumackerstrasse

Stadthaus Baumackerstrasse

Brandhaus Übungsdorf

"Statt-Haus" Erlenstrasse

Mehrfamilienhaus "Im Lingg"

Ersatzneubau Winterhalde

Zypressenhof Limmatfeld

Mieterausbau ECHO RE

AXA Generalagentur City

Einfamilienhaus Kristall

Liegenschaft «Eber»

ZüriWC Bucheggplatz

ZüriWC Meierhofplatz

Bahnhofstrasse 106/108

Pflegezentrum Mattenhof

Food Emporium Bridgemarket

Herdernstrasse

Primarschulhaus Haldenacher

Eichbergpark

Seestrasse

Schulhaus Rothenthurm

Krematorium Schoren

Wohnüberbauung Stricker Areal

Wohnüberbauung Brünnen

Areal Tramdepot Burgernziel

Lerchenhalde

Café Letten

Siedlung Eyhof

Sukkulenten Sammlung Zürich

Eigentumswohnung Rütistrasse

Raiffeisenbank Kreuzplatz

Badeanlage Oberer Letten

Schulhaus Bitzius

Personalrestaurant NZZ

Terrassenhäuser Zum Obstberg

Villa am Zürichsee

Maison d’ami „la draille“

Lindt Amici Bar Globus

Schulhaus Pfaffechappe
